Retour aux résultats de recherche
Dernière minute

Villa

Maison dans village avec piscine et sauna

  • 1-10 personnes

  • 4 chambres à coucher

  • 4 salles de bains

  • Animaux de compagnie à convenir


La villa est située au sommet de Narni, un village médiéval typique d’Ombrie, qui a gagné en renommée ces dernières années grâce aux Chroniques de Narnia, ayant inspiré l’écrivain CS Lewis. La propriété est située dans la vieille ville de Narni, près de la forteresse imposante, et surplombe la vieille ville de Narni. Depuis le jardin et les pièces, on peut profiter de la vue spectaculaire sur les vallées abruptes qui entourent le village. La propriété est un ancien monastère qui a été rénové avec un grand soin et l’utilisation de matériaux de construction traditionnels, mais elle est également équipée de commodités modernes telles qu’une piscine, un sauna, un chauffage par le sol et la climatisation. Le mobilier est un mélange de modernité et de style ancien ! Les vieux murs entourent tout le jardin. Le jardin se compose de deux parties. Sur la partie supérieure, vous trouverez la porte d’entrée, une place de parking pour 3 à 4 voitures (dont 2 également couvertes), un jardin avec salon à l’ombre de quelques arbres et, avec de magnifiques vues sur les toits du village, un kiosque avec table à manger où l’on passe les soirées d’été. Un barbecue est également disponible pour la cuisson. Devant l’entrée de la maison, il y a aussi une cour abritée avec des tables/chaises pour 10 personnes pour la restauration en plein air, parfaite pour le petit-déjeuner et le déjeuner. Un escalier mène à la partie inférieure du jardin où se trouvent la piscine (6 par 3 mètres, profondeur 1,20 mètre), le sauna et une piscine naturelle creusée dans la roche avec de l’eau froide qui jaillit directement des rochers. La piscine est équipée de chaises longues et à côté se trouve une pelouse. La maison peut accueillir jusqu’à 9 personnes et dispose de 4 chambres.
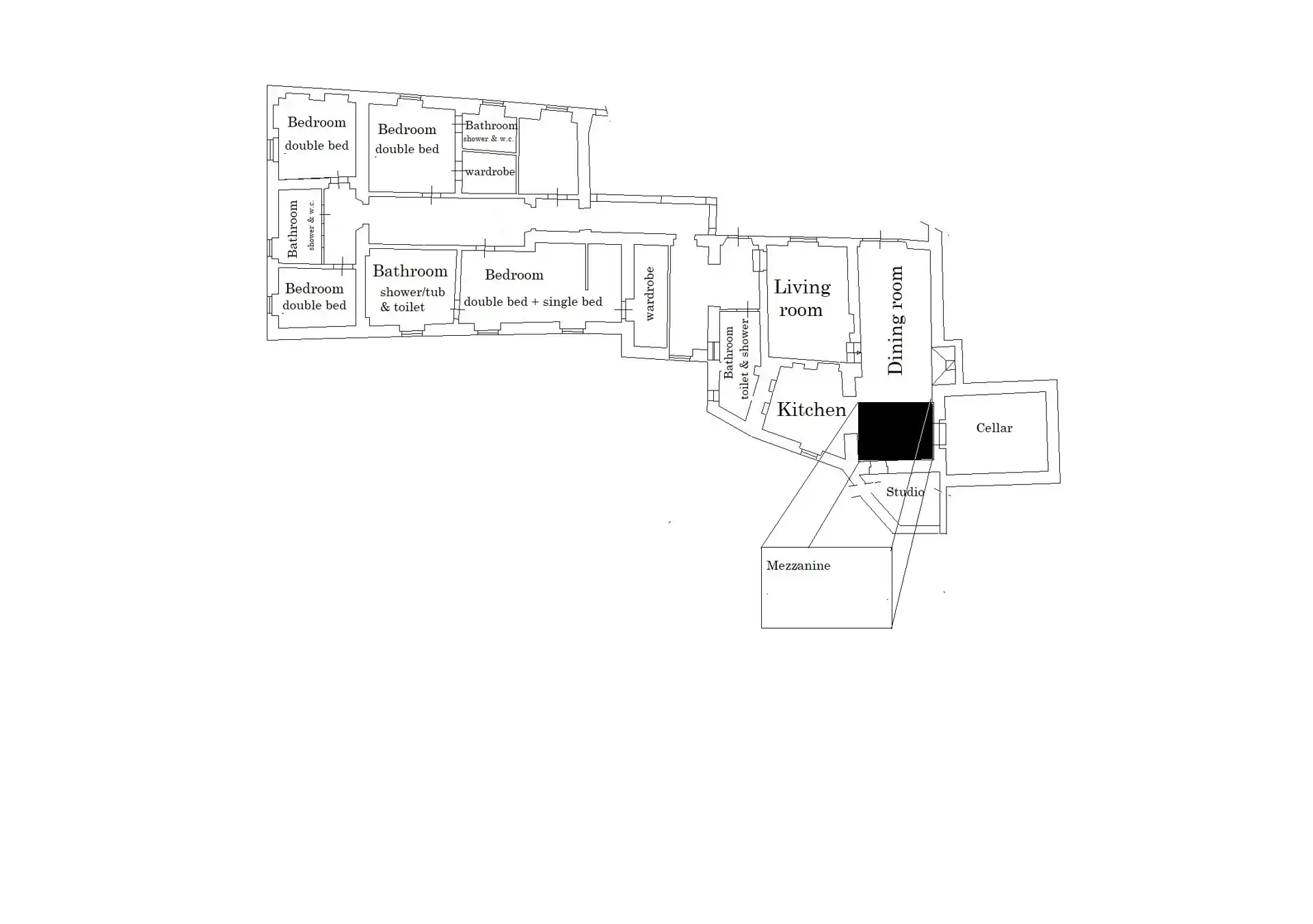
Toute la maison est au rez-de-chaussée avec 2 à 3 septs entre la cuisine/la salle à manger et deux autres entre le salon et les chambres. Au rez-de-chaussée se trouve un grand salon avec cheminée, une table à manger et des chaises pour 8 personnes et une cuisine bien équipée. Au même étage, un coin bureau avec un bureau et une chaise. Derrière ce studio, un escalier mène à une mezzanine, avec un sol en verre. En descendant quelques marches, nous trouvons un salon avec un canapé pour 6 personnes, une télévision à écran plat et une salle de bain complète avec douche/toilettes. La zone de couchage compte 4 chambres. La chambre principale avec un lit double, un lit simple, une armoire et une salle de bain attenante avec douche, baignoire. Il y a une deuxième chambre avec un lit double et une douche et une armoire attenantes. Les deux dernières chambres doubles (toutes deux avec un lit double) ont une salle de bain partagée avec douche. Il y a aussi une buanderie avec machine à laver. Lit de camp et chaise haute disponibles sur demande. Il y a des supermarchés, des boulangeries/pâtisseries, des bars, des pizzas à emporter à 200-400 mètres de la propriété. Grand supermarché à 2,7 km. Le restaurant Il Gattamelata se trouve à 350 mètres et La Gallina Libérate à 500 mètres. Plus de restaurants disponibles dans la région de Narni. Début mai chaque année, un événement médiéval a lieu dans la ville et pendant quelques semaines, il est également possible de manger dans trois tavernes typiques. Si vous souhaitez venir sans voiture, il y a une gare à Narni Scalo (la ville moderne) et de là, vous pouvez prendre un bus pour la vieille ville (il y a un arrêt de bus à 300 mètres de la propriété). Si vous souhaitez visiter Rome et Florence, nous vous recommandons de prendre le train.
Dans la région, vous pouvez vivre de nombreuses expériences en contact avec la nature préservée de l’Ombrie, comme la randonnée, le VTT et l’équitation. Cette région est une excellente base pour explorer de nombreux villages en Ombrie. Todi, Spoleto, Orvieto, Amelia, Montefalco. À quelques kilomètres, vous pouvez également visiter les cascades de Marmore, les plus hautes cascades d’Europe !! Vous pouvez aussi choisir d’organiser des visites guidées pour découvrir les secrets des villages médiévaux et des événements privés à la villa !

m² : 250
Rez-de-chaussée : grande salle à manger avec cheminée et cuisine bien équipée, coin bureau, salon avec canapé et télévision, salle de bain avec douche/toilettes. 4 chambres. Un avec un lit double, un lit simple et une salle de bain en-siute (douche/baignoire/toilettes). Une chambre double avec salle de bain attenante avec douche/toilettes. Deux chambres doubles. Une salle de bain avec douche/WC.


Installations extérieures :
Jardin clos et 4 places de parking (2 couvertes)
Cour avec chaises, salon et table pour la restauration en plein air.
Barbecue.
Piscine (10x3 mètres. Profondeur 1,20 m).
Sauna et bain-marie froide

Votre propriétaire , Guido Paul

A une note moyenne de 8,7
Propriétaire vérifié
Répond en moyenne dans un délai de 8 heures
Je suis né aux Pays-Bas (Leidschendam) de père néerlandais et de mère italienne. A vécu aux Pays-Bas jusqu'en 1985, date à laquelle nous avons déménagé en Italie (région de l'Ombrie). Après mon master d'économie générale en juin 2002, j'ai travaillé à plein temps dans notre entreprise de location de maisons de vacances. De plus, je m'occupe de la gestion financière de fondations néerlandaises, dont la Hofje van Nieuwkoop à La Haye, la plus grande cour des Pays-Bas avec 62 logements.

Tarifs & réserver

Dernière minute

Vous partez en vacances dans 6 semaines ? Profitez alors d'une réduction de dernière minute !

Sélectionnez la date d'arrivée et la date de départ dans le calendrier
Sélectionnez votre date de départ.
 Séjour minimum  nuitées
Cliquez sur le bouton orange pour réserver.
Effacer
  • 1 Date d'arrivée / de départ
  • 1 Disponible
  • 1 Pas de disponibilité
  • 1 Occupé
  • 1 Réduction

Explication des tarifs & politique d'annulation

La propriété vous est louée uniquement en permanence. La maison, le jardin, la piscine ne sont pas utilisés par d’autres personnes.

La piscine est ouverte de la mi-mai à la mi-octobre. 

Conditions de paiement : déposer 10 % du montant de la réservation. Le paiement du solde doit être effectué au plus tard 60 jours avant l’arrivée.

Politique d’annulation : si le locataire annule l’accord dans la période pouvant aller jusqu’à 61 jours avant la date de début de la période de location, il devra toujours 10 % du montant de la réservation ; En cas d’annulation à partir de 60 jours, 100 % du montant du loyer. Vous pouvez également souscrire une assurance annulation via MICAZU lors de la réservation.

Le dépôt est versé à l’avance, avec le prix du loyer, et remboursé dans la semaine suivant le départ par Micazu. Tout dommage ou objet ménager manquant sera déduit du dépôt.


Le prix de réservation (prix de base + suppléments + coûts à payer sur place) comprend :
Linge de lit et de bain (serviettes de piscine non fournies)
Consommation d’eau, d’électricité, de gaz (sauf dans le cas de la consommation de chauffage)
Connexion internet Wi-Fi
Nettoyage final

La recharge des voitures électriques est disponible sur demande. Le prix est de 20 euros par jour.


Tarifs

Les prix sont par séjour

du
sam. 27-sept.-2025
au
sam. 30-mai-2026
Séjour minimum 5 nuits
Semaine € 2200,00
Midweek -
Nuit € 300,00
Week-end -
du
sam. 30-mai-2026
au
sam. 04-juil.-2026
Séjour minimum 5 nuits
Semaine € 2700,00
Midweek -
Nuit € 450,00
Week-end -
du
sam. 04-juil.-2026
au
sam. 11-juil.-2026
Séjour minimum 6 nuits
Semaine € 3300,00
Midweek -
Nuit € 490,00
Week-end -
du
sam. 11-juil.-2026
au
sam. 08-août-2026
Séjour minimum 5 nuits
Semaine € 3780,00
Midweek -
Nuit € 590,00
Week-end -
du
sam. 08-août-2026
au
sam. 22-août-2026
Séjour minimum 10 nuits
Semaine € 3780,00
Midweek -
Nuit € 540,00
Week-end -
du
sam. 22-août-2026
au
sam. 29-août-2026
Séjour minimum 6 nuits
Semaine € 3300,00
Midweek -
Nuit € 490,00
Week-end -
du
sam. 29-août-2026
au
sam. 05-sept.-2026
Séjour minimum 6 nuits
Semaine € 3200,00
Midweek -
Nuit € 457,00
Week-end -
du
sam. 05-sept.-2026
au
sam. 26-sept.-2026
Séjour minimum 5 nuits
Semaine € 2700,00
Midweek -
Nuit € 450,00
Week-end -
du
sam. 26-sept.-2026
au
sam. 29-mai-2027
Séjour minimum 5 nuits
Semaine € 2200,00
Midweek -
Nuit € 300,00
Week-end -

Frais supplémentaires

Vous trouverez ici tous les frais supplémentaires obligatoires & facultatifs.

Animaux de compagnie
€ 10,00
Par article par nuitée
Payez sur place | obligatoire
Caution
€ 600,00
Par séjour
Payer à la réservation | obligatoire
Électricité
€ 50,00
Par nuitée
Payez sur place | obligatoire
Frais de service
% 14,00
Par séjour
Payer à la réservation | obligatoire
Ménage de fin de séjour
€ 200,00
Par séjour
Payez sur place | obligatoire
Personne supplémentaire (le prix de base s'applique jusqu'à 8 personnes inclus)
€ 30,00
Par personne par nuitée
Payer à la réservation | obligatoire

Règles de la maison

  • Heure d'arrivée: 16:00 - 21:00
    Heure de départ: 10:00
  • Animaux de compagnie à convenir
  • Fumer non autorisé
  • Heures de silence 23:00 - 07:00
  • Fêtes et événements à convenir
  • Enfants autorisé
  • Visites autorisé
  • Photographie commerciale autorisé
  • Heure d’arrivée : possible avant l’heure indiquée si aucun autre client ne quitte le jour de l’arrivée et la maison peut être préparée la veille de l’arrivée.

Emplacement et conseils pour le locataire

Conseils du propriétaire

Vue panoramique d'amelia

Plan


Agencement

Salon
Rez-de-chaussée

Coin repas / Table à manger

Chaise longue

Chambre à coucher 1
Rez-de-chaussée

Bed: Lit double 190 x 160 cm

Bed: Lit simple 180 x 80 cm

Armoire(s)

Chambre à coucher 2
Rez-de-chaussée

Bed: Lit double 190 x 160 cm

Armoire(s)

Chambre à coucher 3
Rez-de-chaussée

Bed: Lit double 190 x 160 cm

Chambre à coucher 4
Rez-de-chaussée

Bed: Lit double 190 x 130 cm

Salle de bain 1
Rez-de-chaussée

Bidet

Toilettes

Douche

Salle de bain 2
Rez-de-chaussée

Bidet

Toilettes

Douche

Salle de bain 3
Rez-de-chaussée

Bidet

Toilettes

Douche

Salle de bain 4
Rez-de-chaussée

Bidet

Toilettes

Douche

Studio
Rez-de-chaussée
mezzanine
1er étage
Cuisine

Sorte: Pièce séparée

Four: Gaz

Cafetière

Piscine

Sorte: Piscine extérieure / Piscine intégrée

Chauffage : Piscine non chauffée Piscine

Confidentialité: Piscine privée


Facilités

Type de logement

  • Villa

Espace de vie

  • 250 m2

Enfants

  • Lit pour enfants / bébés (2)
  • Chaise haute (2)

Sports & loisirs

  • Cyclisme
  • VTT
  • Équitation
  • Tennis
  • Randonnée

Thèmes populaires

  • Culture & histoire
  • Adapté aux enfants
  • Location longue durée
  • En pleine nature
  • Partir en week-end
  • Hébergement de groupe

Bien-être

  • Sauna

Chauffage

  • Chauffage au sol
  • Cheminée
  • Climatisation

Internet, Wi-Fi, audio

  • Télévision
  • Wi-Fi
  • Connexion internet

Aménagements extérieurs

  • Barbecue
  • Éclairage extérieur
  • Abri de voiture
  • Transat(s)
  • Place(s) de parking (4)
  • Allée privée
  • Terrasse (2)
  • Jardin
  • Chaise(s) de jardin
  • Table(s) de jardin
  • Salon de jardin
  • Jardin entièrement clôturé
  • Borne de recharge pour voiture électrique

Équipements

  • Lave-linge
  • Toilettes séparées

Linge de maison

  • Linge de lit
  • Serviettes
  • Linge de cuisine
  • Linge de lit enfant / bébé

Intimité

  • Intimité totale
  • Maison individuelle


Numéro de licence :
IT055022C101033481
€ 251,-
par nuit à partir de (basé sur 1 semaine)
€ 251,-
par nuit à partir de (basé sur 1 semaine)
Arrivée
-
Départ Selectionnez
  • Sans frais de service !
  • Auprès du propriétaire
  • Avis vérifiés: 4,6 sur Google
Payez en ligne en toute sécurité