Retour aux résultats de recherche
Dernière minute

Villa

Maison avec piscine privée Lac Trasimène

  • 1-18 personnes

  • 7 chambres à coucher

  • 4 salles de bains

  • Animaux de compagnie autorisé


La villa est située à la frontière entre l’Ombrie et la Toscane, à 20 km du lac Trasimène et de Pérouse (la ville du jazz de l’Umbra, un célèbre festival de jazz).

Il est situé dans un quartier calme, où il est possible de se détendre en toute saison, à proximité de Tarvernelle et Panicale, deux petits villages où vous pouvez trouver des magasins, des restaurants et des bars.

La propriété dispose d’un jardin entièrement clôturé avec piscine (12 x 6 mètres - profondeur 1,50) et de la climatisation dans chaque pièce (dans toutes les chambres et également dans les salons). L’ensemble de la propriété est à usage privé et n’est pas partagé avec d’autres personnes. Il s’agit d’une ancienne ferme, récemment rénovée avec le confort moderne.

La villa dispose d’un total de 7 chambres / 14 lits. Deux lits supplémentaires, un canapé-lit double et 3 lits bébé sont également disponibles (également une chaise haute). La piscine est équipée de transats / parasols et dans le jardin, il y a une table de ping-pong, un baby-foot et une pelouse avec deux buts de football.

La villa dispose d’une grande terrasse couverte avec des tables / chaises pour 20 personnes pour les repas en plein air et il y a un barbecue disponible pour cuisiner.

À côté de la terrasse, il y a un grand salon avec cheminée et un coin télévision avec un canapé pour 5 personnes et un coin repas avec table/chaises pour 14 personnes. Il y a une cuisine bien équipée avec une autre table pour 4 personnes.

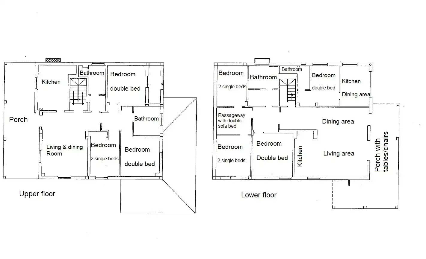
Au rez-de-chaussée, il y a 4 chambres. L’un avec un lit double (séparable) avec salle de bain attenante (avec douche/WC) et kitchenette, 2 avec deux lits simples et un avec un lit double (il est possible d’ajouter un lit supplémentaire ici). Il y a aussi une déconnexion avec canapé-lit. Il y a une grande salle de bain avec douche / WC pour l’usage commun des 3 chambres.

Au premier étage, il y a un autre salon avec coin télévision et un canapé pour 5 personnes et un coin repas avec table/chaises pour 8 personnes, une cuisine avec cheminée et une autre table pour 4 personnes. À cet étage, il y a 3 chambres avec un lit double, dont deux peuvent être séparées. Dans deux chambres, il est possible d’ajouter un lit supplémentaire. À cet étage, il y a deux salles de bains à usage commun des trois chambres (l’une avec baignoire à remous/toilettes et l’autre avec douche/toilettes). Lit bébé et chaise haute disponibles sur demande.
La buanderie est située dans l’annexe à quelques mètres de la villa.
Wi-Fi disponible dans toute la propriété.

Les supermarchés les plus proches sont disponibles dans la ville de Tavernelle, à 2,5 km de l’établissement. Deux supermarchés plus grands sont à 4 km. Le restaurant le plus proche se trouve à 1,6 km de la propriété (restaurant Dolium), il y a un pub (millenoventopub) à 3,2 km et deux autres restaurants à 3,7 (Il salto in bocca) et 4,4 km (Dal volpino). Dans la ville voisine, nous vous recommandons également le restaurant La Locanda del Busta. D’autres restaurants se trouvent à Panicale à 15 km de la propriété (nous recommandons Masolino).

m2 : 400 m2
Rez-de-chaussée : Grande terrasse couverte avec tables/chaises pour 20 personnes, grand salon avec cheminée, coin TV et canapé pour 5 personnes, coin repas avec table/chaises pour 14 personnes, cuisine bien équipée avec une autre table pour 4. 4 chambres. L’une avec un lit double (séparable), une salle de bain attenante (avec douche/WC) et kitchenette, 2 avec deux lits simples et une avec un lit double (un lit supplémentaire peut être ajouté ici), une cloison avec canapé-lit, une grande salle de bain avec douche/WC.
1er étage : salon avec un coin TV, canapé pour 5 personnes et un coin repas avec table/chaises pour 8 personnes, cuisine avec cheminée et table pour 4 personnes. 3 chambres avec lit double (dont deux peuvent être séparées et en deux un lit supplémentaire peut être ajouté), salle de bain avec bain à remous/toilettes, salle de bain avec douche/toilettes.

Aménagements extérieurs :
Jardin clôturé et places de parking
Véranda avec chaises et table pour les repas en plein air.
Griller.
Piscine (6m x 12m profondeur : 1,50).
Chaises longues et parasols
Table Ping-pog
Baby-foot
Terrain en herbe avec buts de football

Votre propriétaire , Guido Paul

A une note moyenne de 8,7
Propriétaire vérifié
Répond en moyenne dans un délai de 8 heures
Je suis né aux Pays-Bas (Leidschendam) de père néerlandais et de mère italienne. A vécu aux Pays-Bas jusqu'en 1985, date à laquelle nous avons déménagé en Italie (région de l'Ombrie). Après mon master d'économie générale en juin 2002, j'ai travaillé à plein temps dans notre entreprise de location de maisons de vacances. De plus, je m'occupe de la gestion financière de fondations néerlandaises, dont la Hofje van Nieuwkoop à La Haye, la plus grande cour des Pays-Bas avec 62 logements.

Tarifs & réserver

Dernière minute

Vous partez en vacances dans 6 semaines ? Profitez alors d'une réduction de dernière minute !

Sélectionnez la date d'arrivée et la date de départ dans le calendrier
Sélectionnez votre date de départ.
 Séjour minimum  nuitées
Cliquez sur le bouton orange pour réserver.
Effacer
  • 1 Date d'arrivée / de départ
  • 1 Disponible
  • 1 Pas de disponibilité
  • 1 Occupé
  • 1 Réduction

Explication des tarifs & politique d'annulation

La propriété vous est louée uniquement en permanence. La maison, le jardin, la piscine ne sont pas utilisés par d’autres personnes. La piscine est ouverte de fin avril à fin octobre. 

Conditions de paiement : déposer 10 % du montant de la réservation. Le paiement du solde doit être effectué au plus tard 60 jours avant l’arrivée.

Politique d’annulation : si le locataire annule l’accord dans la période pouvant aller jusqu’à 61 jours avant la date de début de la période de location, il devra toujours 10 % du montant de la réservation ; En cas d’annulation à partir de 60 jours, 100 % du montant du loyer. Vous pouvez également souscrire une assurance annulation via MICAZU lors de la réservation.

Le dépôt est versé à l’avance, avec le prix du loyer, et remboursé dans la semaine suivant le départ par Micazu. Tout dommage ou objet ménager manquant sera déduit du dépôt.

Le prix de réservation (prix de base + suppléments + coûts à payer sur place) comprend :
Linge de lit et de bain (serviettes de piscine non fournies)
Consommation d’eau, d’électricité, de gaz (sauf dans le cas de la consommation de chauffage)
Connexion internet Wi-Fi
Nettoyage final

Autres coûts à payer sur place (facturés selon la consommation) :
Coûts de chauffage


Tarifs

Les prix sont par séjour

du
sam. 27-sept.-2025
au
sam. 30-mai-2026
Séjour minimum 3 nuits
Semaine € 3000,00
Midweek -
Nuit € 500,00
Week-end -
du
sam. 30-mai-2026
au
sam. 27-juin-2026
Séjour minimum 6 nuits
Semaine € 3500,00
Midweek -
Nuit € 500,00
Week-end -
du
sam. 27-juin-2026
au
sam. 29-août-2026
Séjour minimum 7 nuits
Semaine € 3950,00
Midweek -
Nuit € 564,00
Week-end -
du
sam. 29-août-2026
au
sam. 19-sept.-2026
Séjour minimum 6 nuits
Semaine € 3500,00
Midweek -
Nuit € 500,00
Week-end -
du
sam. 19-sept.-2026
au
sam. 29-mai-2027
Séjour minimum 4 nuits
Semaine € 3000,00
Midweek -
Nuit € 500,00
Week-end -

Frais supplémentaires

Vous trouverez ici tous les frais supplémentaires obligatoires & facultatifs.

Animaux de compagnie
€ 50,00
Par article
Paiement sur place | optionnel
Caution
€ 600,00
Par séjour
Payer à la réservation | obligatoire
Frais de service
% 14,00
Par séjour
Payer à la réservation | obligatoire
Ménage de fin de séjour
€ 200,00
Par séjour
Payez sur place | obligatoire

Règles de la maison

  • Heure d'arrivée: 16:00 - 22:00
    Heure de départ: 10:00
  • Animaux de compagnie autorisé
  • Fumer non autorisé
  • Heures de silence 23:00 - 07:00
  • Fêtes et événements à convenir
  • Enfants autorisé
  • Visites autorisé
  • Photographie commerciale à convenir
  • Heure d’arrivée : possible avant l’heure indiquée si aucun autre client ne quitte le jour de l’arrivée et la maison peut être préparée la veille de l’arrivée.

Emplacement et conseils pour le locataire

Conseils du propriétaire

Dans la région du lac Trasimène, vous pouvez faire du pistage, du VTT et de l’équitation. Il y a deux clubs de golf principaux à proximité, le Golf Club Lamborghini à 16 km et le Golf Club Perugia à 20 km. Cette région est un point de départ idéal pour explorer une grande partie de la Toscane et de l’Ombrie. Au nord, à environ 20 minutes de route, se trouve Castiglione del Lago, une belle ville située sur une péninsule étroite au bord du lac Trasimène. Le lac fluvial abrite également Tuoro et Passignano, qui ont tous deux un service de ferry pour rejoindre les trois îles du lac.
De nombreuses villes importantes de l’Ombrie et de la Toscane peuvent être visitées lors d’une excursion d’une demi-journée, par exemple Città della Pieve, le lieu de naissance de l’artiste de la Renaissance du Pérugin ; Assise, patrie de Saint François, Spoleto, Bevagna, Montefalco avec son important vignoble, Spello, Deruta et Gubbio, Montepulciano, célèbre pour ses vins prestigieux, Orvieto et Civita di Bagnoregio, Sienne et Pienza.
Rome et Florence peuvent être facilement visitées en conduisant 20 minutes jusqu’à la gare de Chiusi, en laissant la voiture à la maison et en prenant un InterCity.

De nombreuses villes importantes de l’Ombrie et de la Toscane peuvent être visitées avec une excursion d’une demi-journée, par exemple, Città della Pieve, le lieu de naissance de l’artiste de la Renaissance du Pérugin ; Assise, la patrie de Saint François, Spoleto, Bevagna, Montefalco avec son important vignoble, Spello, Deruta et Gubbio, Montepulciano, célèbre pour ses vins prestigieux, Orvieto et Civita di Bagnoregio, Sienne et Pienza.
Rome et Florence peuvent être facilement visitées en conduisant à la gare de Chiusi en 20 minutes, en laissant la voiture et en prenant un InterCity.

En Ombrie, également connue comme le cœur vert de l’Italie, le tourisme est en plein essor en raison de l’harmonie sans précédent entre la nature, les antiquités, les centres historiques, la culture. La tranquillité rurale, de bons équipements, une cuisine inimitable sont l’attraction principale. La région est moins touristique que la Toscane et c’est un avantage pour la plupart des gens qui viennent en vacances dans cette région.
La région est facilement accessible par les personnes qui viennent en avion, les aéroports les plus proches sont Pérouse et Rome. C’est un point de départ idéal pour profiter de la tranquillité du paysage vallonné et montagneux environnant et d’autre part pour faire au moins 40 voyages en voiture vers de belles villes telles que Todi, Orvieto, Narni, Spoleto, Viterbo (15 à 40 min.) ou Pérouse, Gubbio, Spello, Assise, Tuscania et Tarquinia sur la côte avec un magnifique petit musée d’art étrusque et des tombes étrusques avec des fresques vieilles de 2300 ans (60-75 min.) ou un peu plus au nord la ville étrusque reste Volci. En outre, dans les environs plus immédiats, il y a de nombreux villages charmants - à l’origine médiévaux - qui sont de plus en plus restaurés pour le tourisme de week-end et d’été : San Restituta, Civita di Bagnoreggio, Lugnano, Stroncone, Labro (max. 40 min), Montefranco, Arrone etc. À proximité se trouvent également les vastes vestiges de la ville romaine de Carsulae. Vous pouvez également visiter facilement des endroits du sud de la Toscane en voiture tels que Sienne, San Giminiano, Pienza, Cortona, Sinalunga, etc. De nombreux touristes visitent Rome une ou plusieurs fois, en voiture ou en train depuis les gares de Terni, Narni-Amelia, Orte et Orvieto.
Et sans oublier les montagnes avec parfois de belles forêts, par ex. Terminillo (jusqu’à 2000 mètres en voiture). Vous pouvez également rejoindre les magnifiques lacs de Bracciano, Vico, Piediluco, Bolsena et Trasimeno en 30 à 60 minutes ; avec des excursions en bateau sur les deux derniers lacs vers les îles. La mer Méditerranée et les plages de sable entre Tarquinia et Chiarone sont à environ 90 km (1h20 en voiture). Près de la ville de Terni, il est également possible de visiter le waterfal Marmore (il peut être activé et désactivé à cause d’un réservoir), près du waterfal se trouve un centre de rafting/canoë/hyrdospeed.

Plan


Agencement

Salon 1
Rez-de-chaussée
50 m2

Carrelage

Chaises de salle à manger (8)

Canapé-lit 1 place (5)

Salon 2
1er étage

Climatisation

Coin repas / Table à manger

Chaises de salle à manger

Salon 3
2ème étage

Climatisation

Canapé-lit 1 place

Chambre à coucher 1
Rez-de-chaussée

Bed: Lit double 190 x 160 cm

Couvertures

Armoire(s)

Chambre à coucher 2
Rez-de-chaussée

Bed: Lit double 190 x 160 cm

Couvertures

Armoire(s)

Chambre à coucher 3
Rez-de-chaussée

Bed: Lit simple 190 x 90 cm

Bed: Lit simple 190 x 90 cm

Couvertures

Chambre à coucher 4
Rez-de-chaussée

Bed: Lit simple 190 x 90 cm

Bed: Lit simple 190 x 90 cm

Couvertures

Chambre à coucher 5
1er étage

Bed: Lit double 190 x 160 cm

Couvertures

Armoire(s)

Chambre à coucher 6
1er étage

Bed: Lit double 190 x 160 cm

Couvertures

Armoire(s)

Chambre à coucher 7
1er étage

Bed: Lit simple 190 x 90 cm

Bed: Lit simple 190 x 90 cm

Couvertures

Salle de bain 1
Rez-de-chaussée

Bidet

Toilettes

Douche

Salle de bain 2
Rez-de-chaussée

Bidet

Toilettes

Douche

Salle de bain 3
1er étage

Bidet

Toilettes

Bain à remous

Salle de bain 4
1er étage

Bidet

Toilettes

Douche

pièce de passage (entre deux chambres) avec canapé-lit double
Rez-de-chaussée
Cuisine 2
1er étage
Cuisine

Sorte: Ouverte

Four: Gaz (4 Zones de cuisson / brûleurs)

Hotte aspirante

Piscine

Sorte: Piscine extérieure / Piscine intégrée

Chauffage : Piscine non chauffée Piscine

Confidentialité: Piscine privée


Facilités

Type de logement

  • Villa

Espace de vie

  • 400 m2

Enfants

  • Lit pour enfants / bébés
  • Chaise haute
  • Lit de camping

Sports & loisirs

  • Cyclisme
  • Golf
  • VTT
  • Tennis
  • Randonnée

Thèmes populaires

  • City-trip / Séjour en ville
  • Culture & histoire
  • Adapté aux enfants
  • Intimité
  • En pleine nature
  • Hébergement de groupe

Chauffage

  • Poêle à gaz
  • Cheminée
  • Climatisation

Internet, Wi-Fi, audio

  • Télévision
  • Wi-Fi
  • Connexion internet

Aménagements extérieurs

  • Barbecue
  • Éclairage extérieur
  • Abri de voiture
  • Transat(s)
  • Parasol(s)
  • Place(s) de parking (8)
  • Allée privée
  • Table de ping-pong
  • Terrasse (3)
  • Jardin
  • Abri de jardin
  • Chaise(s) de jardin
  • Table(s) de jardin
  • Véranda
  • Toit-terrasse
  • Salon de jardin
  • Jardin entièrement clôturé

Équipements

  • Planche à repasser / fer à repasser
  • Lave-linge

Linge de maison

  • Linge de lit
  • Serviettes
  • Linge de cuisine
  • Linge de lit enfant / bébé

Intimité

  • Intimité totale
  • Maison individuelle

Jeux & divertissements

  • Table de ping-pong


Numéro de licence :
IT054037B404030765
€ 300,-
par nuit à partir de (basé sur 1 semaine)
€ 300,-
par nuit à partir de (basé sur 1 semaine)
Arrivée
-
Départ Selectionnez
  • Sans frais de service !
  • Auprès du propriétaire
  • Avis vérifiés: 4,6 sur Google
Payez en ligne en toute sécurité

Plus de maisons de vacances de ce propriétaire